Apart Aucuparia

Zur Merkliste hinzufügen
Ferienwohnung / Appartement

Ruhe und Erholung pur! In der Lourdessiedlung am Ortseingang von Serfaus mit herrlichem Blick auf die umliegende Bergwelt direkt an den Langlaufloipen und Spazierwegen gelegen, finden Sie unser Apartement Aucuparia (Vogelbeere). Nur ca. 3 Gehminuten trennen Sie von der Dorfbahnstation mit der Sie kostenlos und schnell die Seilbahn und das Dorfzentrum mit Restaurants und Geschäften erreichen.

Ihr Vierbeiniger Liebling ist bei uns willkommen! Preis € 15,-- pro Tag.

Diese Unterkunft ist Mitglied von

Gesundheits- und Hygienemaßnahmen

  • Aufnahme der Gast-Kontaktdaten beim CheckIn, die im Infektionsfall relevant sein können - bei Zustimmung des Gastes
  • Bargeldlose Zahlung möglich
  • Abstandsregeln werden eingehalten
  • Bettwäsche, Handtücher und Wäsche werden nach Richtlinien der örtlichen Behörden gewaschen
  • Die Wäsche wird mit der höchsten, vom Produzenten erlaubten Temperatur gewaschen
  • Zimmer werden nach jeder Gast-Abreise sorgfältigst gereinigt, insbesonders oft berührte Gegenstände
  • Einsatz von Reinigungsmitteln, die wirksam gegen das Corona Virus sind
  • Desinfektion oft berührter Gegenstände und Oberflächen
  • Regelmäßige Lüftung allgemein zugänglicher Bereiche
  • Sensibilisierung der Beschäftigten auf Einhaltung der Mindestabstandsregeln
  • Information der Beschäftigten zu Präventions- und Hygienemaßnahmen, richtigem Verhalten bei COVID-19-Symptomen bzw. Infektion
  • Regelmäßige Covid19 Tests für Angestellte, die direkten Gast-Kontakt haben
  • Erste-Hilfe-Kasten verfügbar
  • Zugang zu medizinischen Fachkräften

Konditionen

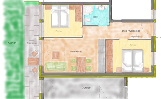
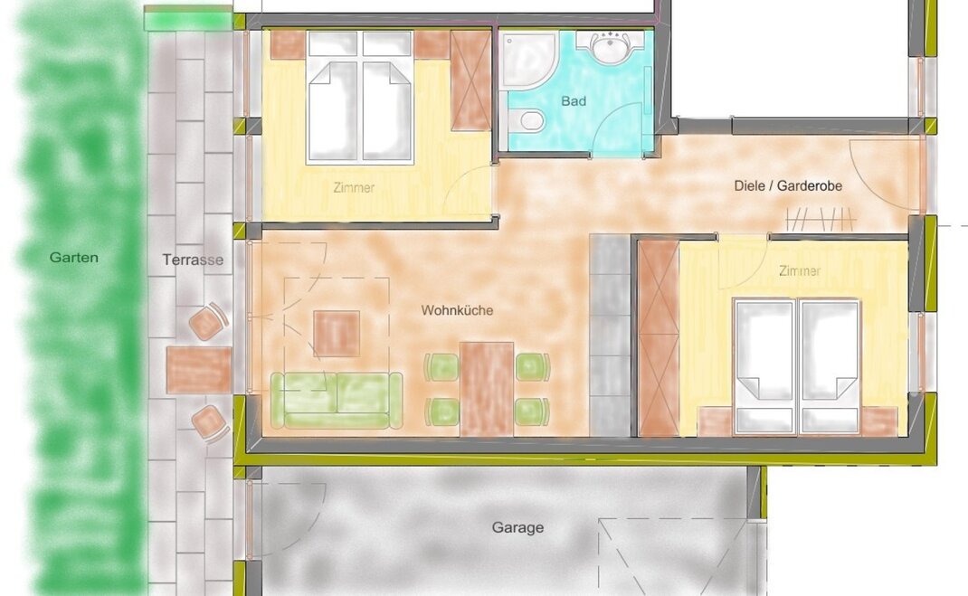
Neu und gemütlich eingerichtete Ferienwohnung für 2-4 Personen, ca. 65 m2 mit 2 Schlafzimmern, Wohnraum mit ausziehbarer Couch, Essecke und offener Küche mit Induktionsherd, Backrohr, Mikrowelle, Geschirrspüler und Kühlschrank und Kaffeemaschine. Badezimmer mit Doppelwaschbecken und Dusche/WC; 2 Flat-TV Gratis W-Lan!


Ausstattung

  • Zahlungsarten

    • Barzahlung
    • Vorauszahlung
    • Überweisung
  • Eignung

    • Familien
    • Kinder
  • Einrichtungen Betrieb

    • Brötchenservice
    • Eigener Garten
    • Familienfreundlich
    • Garage
    • Gartengrill
    • Gartenmöbel
    • Haussafe
    • Haustiere willkommen
    • Internetbenutzung gebührenfrei
    • Liegestühle
    • Neubau
    • Rollstuhlgerecht
    • Satelliten-TV
    • Sonnenterrasse
    • Tiefgarage
    • WiFi
    • Zimmer/App. mit Aussicht
  • Kinder

    • Baby-Wickelauflage
    • Babyphone auf Anfrage
    • Gitterbett / Babybett
    • Kinderbett
    • Kinderfreundlich
    • Kinderhochstuhl
    • Kinderspielplatz
  • Betten & Zimmer

    • Doppelzimmer: 2
    • Ferienwohnung / en: 1
  • Fremdsprachen

    • Deutsch
    • Englisch
  • Energieeinsparung

    • Alle Fenster sind doppelt verglast
    • Einsatz von Solaranlagen, Photovoltaik, Windenergie, Geothermie, Wärmepumpen etc.
    • Energieeffiziente Bauweise / nachhaltige Bau- & Verbrauchsmaterialien
    • Mindestens 80 % der Beleuchtung wird durch energieeffiziente LED-Lampen erzeugt
    • Strom zu 100 % aus erneuerbaren Energien
  • Lage

    • Am Wanderweg
    • Direkt an der Loipe
    • Ortsrand
    • Ruhige Lage
  • Sport / Freizeit

    • Garten / Wiese
    • Liegewiese
  • Mobilität

    • Fahrradparkplätze 
  • Reinigung

    • Einsatz von Reinigungsprodukten und -Materialien aus umweltfreundlichen, natürlichen Bestandteilen ohne giftige Chemikalien
  • Abfallvermeidung & Mülltrennung

    • Kein Einsatz von Plastik bei Strohhalmen, Bechern, Flaschen, Geschirr und -besteck, Rührstäbchen und Deko-Elementen
    • Keine Plastikgebinde für Shampoo, Duschgel, angebotene Toilette-Artikel
    • Mülltrennung / Recyclingtonnen
  • Verpflegung

    • keine Verpflegung
  • Wassereinsparung

    • Gäste können Handtücher mehrmals verwenden
  • Links


Kontakt & Anreise

Apart Aucuparia

Lourdes 33,
6534 Serfaus AT

Anreise

Check-In: ab 11.00 Uhr
Check-Out: bis 09.30 Uhr
auf Google Maps anzeigen

OB SOMMER- ODER WINTERURLAUB HIER ONLINE BUCHEN
  • Größte Auswahl an Betrieben
  • Sicher und schnell
  • Direkt beim Vermieter buchen
Brauchen Sie Hilfe?
Wenden Sie sich direkt an den Tourismusverband Serfaus-Fiss-Ladis
Tel.: +43/5476/6239

Montag bis Samstag 8.00 bis 12.00 und von 13.00 bis 17.00 Uhr
Sonn- und Feiertage geschlossen.